Geen zin om te klussen, maar direct willen wonen? Dat kan hier, bijna. De enige plek die nog afwerking vergt, is de zolder, maar verder…. Instap klaar! De woning is sinds 2022 flink onder handen genomen. Er is een nieuwe keuken, een nieuwe badkamer, er zijn zonnepanelen en het heeft energielabel B. De woning ligt in een rustige straat met parkeermogelijkheid direct voor de deur. Een groene plek in een rustige wijk van Beetsterzwaag.
Indeling:
Aan de straatzijde, bij de voortuin is een vrijstaande stenen schuur. Via de voortuin loop je naar de voordeur.
Begane grond
Entree, meterkast met waterontharder, modern toilet met fonteintje. De woonkamer is gezellig, is voorzien van een mooie PVC vloer en is tuingericht. De tuin heeft een lekker terras en er is een achterom. De keuken uit 2022 is ruim en heeft veel kastruimte. Er is een koelkast en een vriezer, een vaatwasmachine en een inductie vierpitskookplaat met afzuigkap. Via de gang gaan we naar boven, de trap is prachtig gerenoveerd.
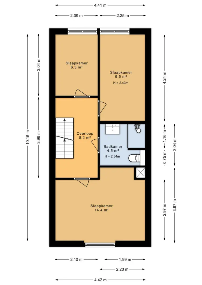
Eerste etage
Een overloop met drie hele goede slaapkamers. De ouderslaapkamer is aan de voorzijde gelegen en er zijn twee slaapkamers aan de achterzijde. Tussen de slaapkamers ligt de onlangs geplaatste, zeer complete badkamer. Er is een douche met regendouche, een wastafel in meubel, een tweede toilet, een designradiator en voor al je badkamerspulletjes een handige hoge kast.
Tweede etage
Hier kan nog het één en ander worden afgewerkt. Er is een royale ruimte voor de wasmachine en de droger. Ook de CV-ketel hangt hier. Er is erg veel opbergruimte en de vierde zeer ruime slaapkamer bevindt zich hier.
Een mooie complete woning die wacht op een nieuwe eigenaar, ben jij dat?





































