Vrijstaande woning met garage en grote tuin op centrale locatie in Beetsterzwaag.
Aan een rustig pad, midden in het sfeervolle dorp Beetsterzwaag, staat deze vrijstaande woning op een royaal perceel van 486 m² eigen grond. Met een lange oprit, vrijstaande garage, en volop mogelijkheden om de woning levensloopbestendig te maken, biedt dit huis een unieke kans voor wie ruim en vrij wil wonen met alle voorzieningen binnen handbereik.
Indeling
Begane grond:
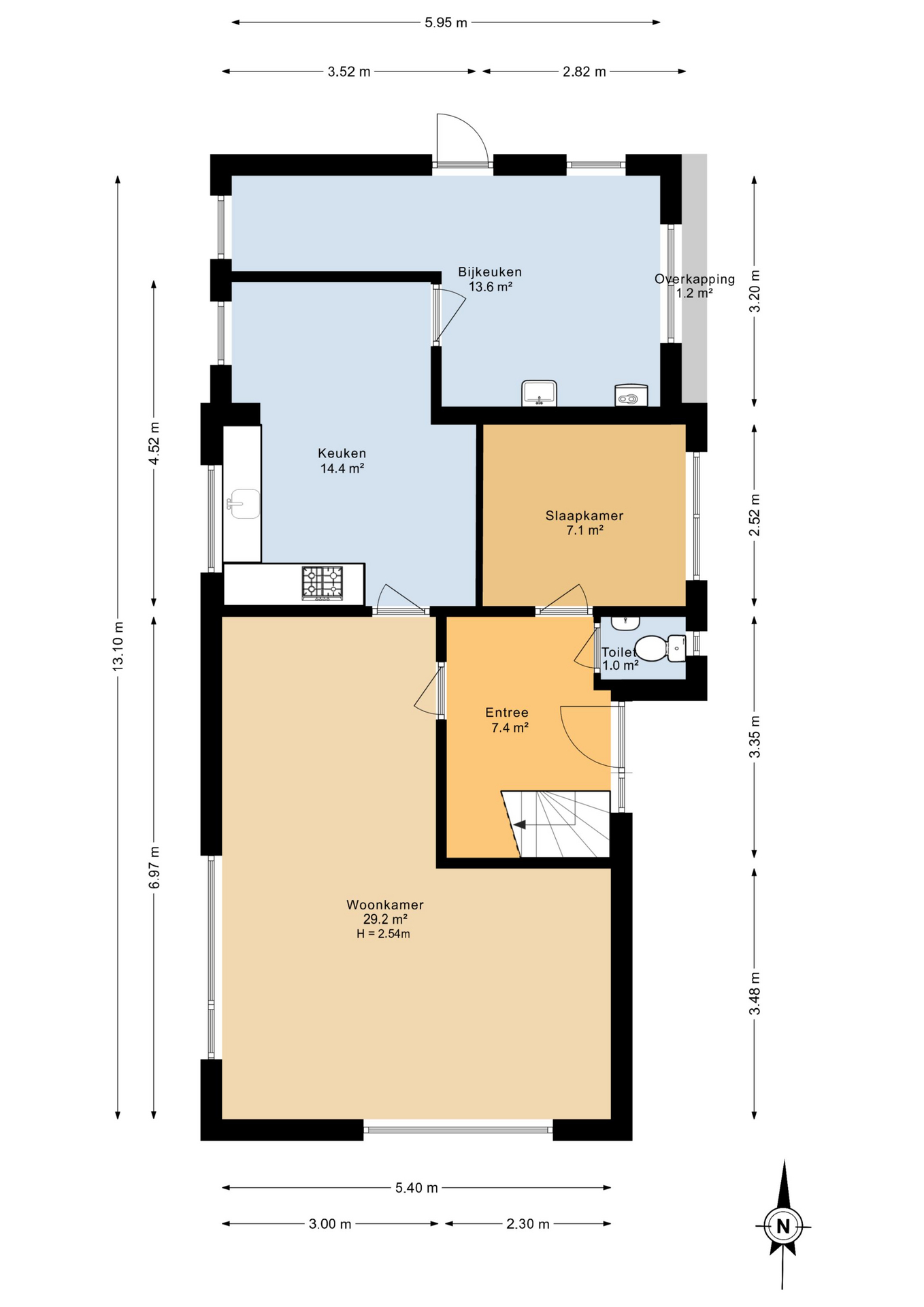
Bij binnenkomst treft u een ruime hal met toilet en toegang tot de slaap/werkkamer op de begane grond. De lichte, L-vormige woonkamer biedt uitzicht op de tuin en grenst aan de dichte keuken, die kan worden opengemaakt voor een open woonkeuken. De ruime bijkeuken biedt volop bergruimte én de mogelijkheid om een badkamer te realiseren, waarmee een levensloopbestendig wonen op de begane grond mogelijk is. Buiten bevinden zich een vrijstaande houten berging en een ruime garage, bereikbaar via de oprit aan de Fockema Andrealaan.
Eerste verdieping:
Op de verdieping bevinden zich twee ruime slaapkamers, waarvan één eventueel te splitsen is in meerdere kamers. De badkamer is voorzien van een douche, toilet en wastafel. Tevens is er een grote bergkast op de overloop.
Tweede verdieping:
Via een vlizotrap bereikt u de vliering/zolderberging, ideaal voor extra opslag.
Buitenruimte
De woning beschikt over een groene, beschutte tuin die veel privacy biedt. Rondom de woning is volop ruimte om van de zon te genieten.
Ligging
De woning is centraal gelegen in Beetsterzwaag, een karakteristiek dorp met ca. 3.700 inwoners. In het dorp vindt u diverse voorzieningen zoals winkels, een basisschool, galeries, restaurants en een supermarkt, allemaal op loopafstand. Ook beschikt het dorp over een 18-holes golfbaan en uitgestrekte bossen die uitnodigen tot wandelen of fietsen.
Steden als Drachten en Heerenveen liggen op korte afstand en zijn snel bereikbaar via de nabijgelegen A7, waardoor ook Groningen en het westen van het land goed bereikbaar zijn.
Bijzonderheden:
– Vrijstaande woning op ruim perceel van 486 m²
– Mogelijkheid tot levensloopbestendig wonen
– Vrijstaande garage en houten berging
– Ruime oprit met parkeergelegenheid op eigen terrein
– Centrale ligging nabij voorzieningen en natuur










































