Start bouw 2026!
Hoofdstraat 108 B – Exclusief wonen in het hart van Beetsterzwaag
Met mogelijkheid voor vier slaapkamers.
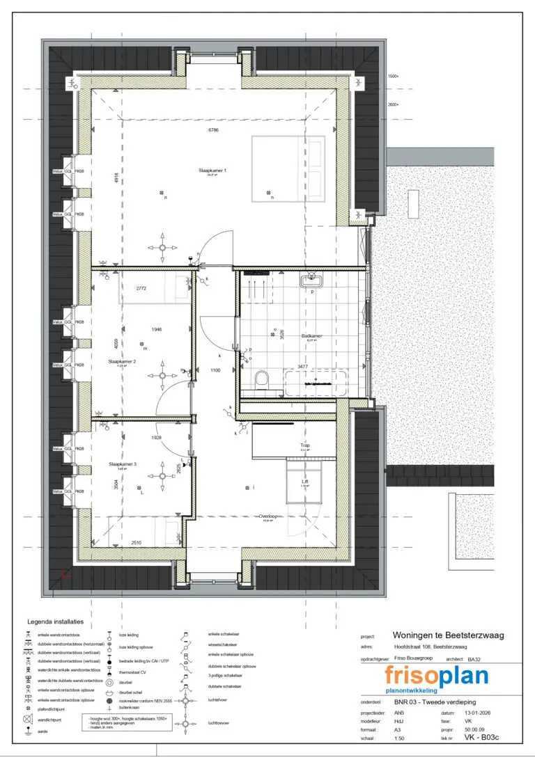
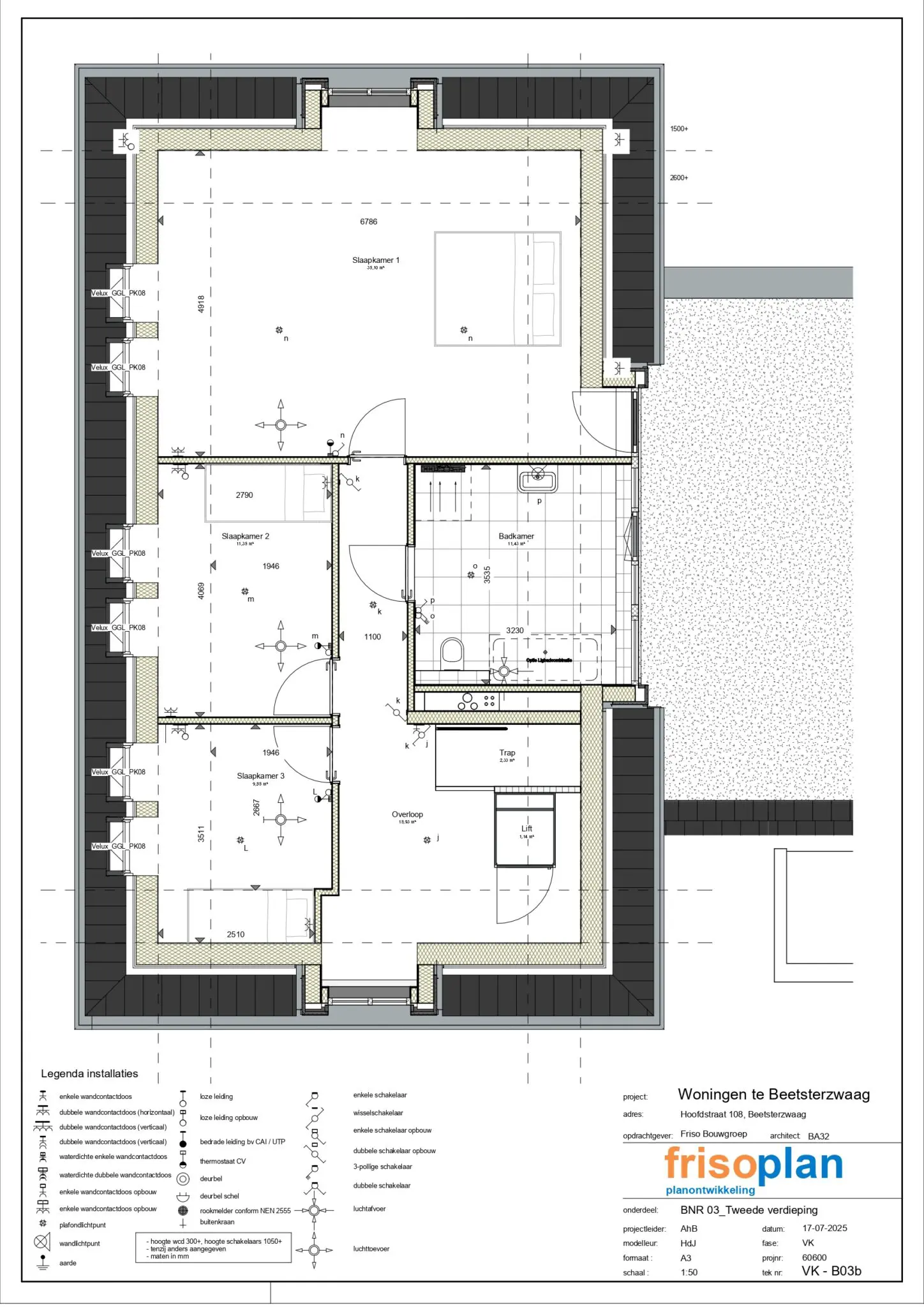
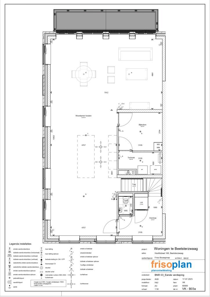
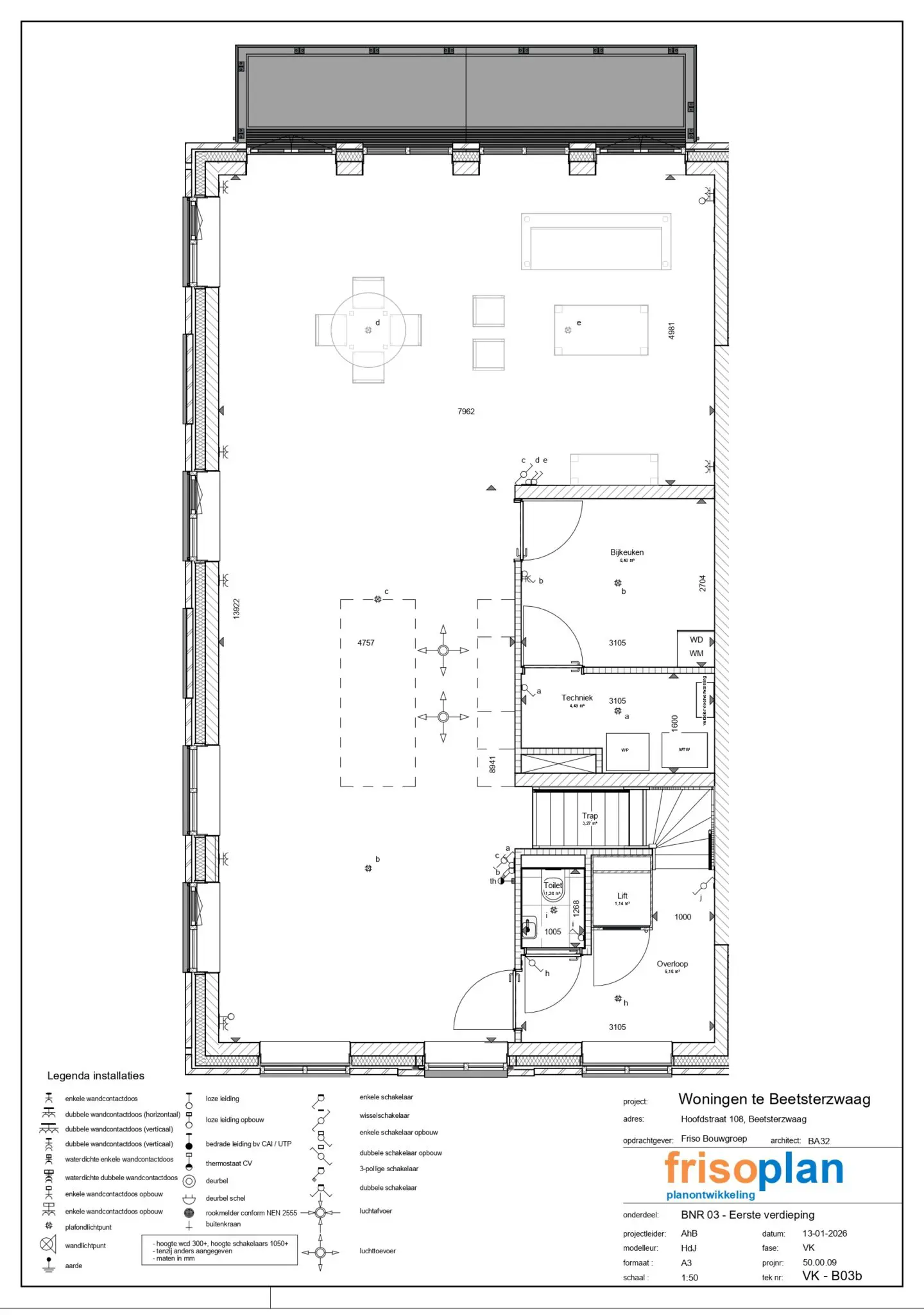
Exclusief luxe penthouse, verdeeld over de eerste en tweede verdieping, een uniek appartement waarvan er slechts één is, met een royale woonoppervlakte van circa 200 m².
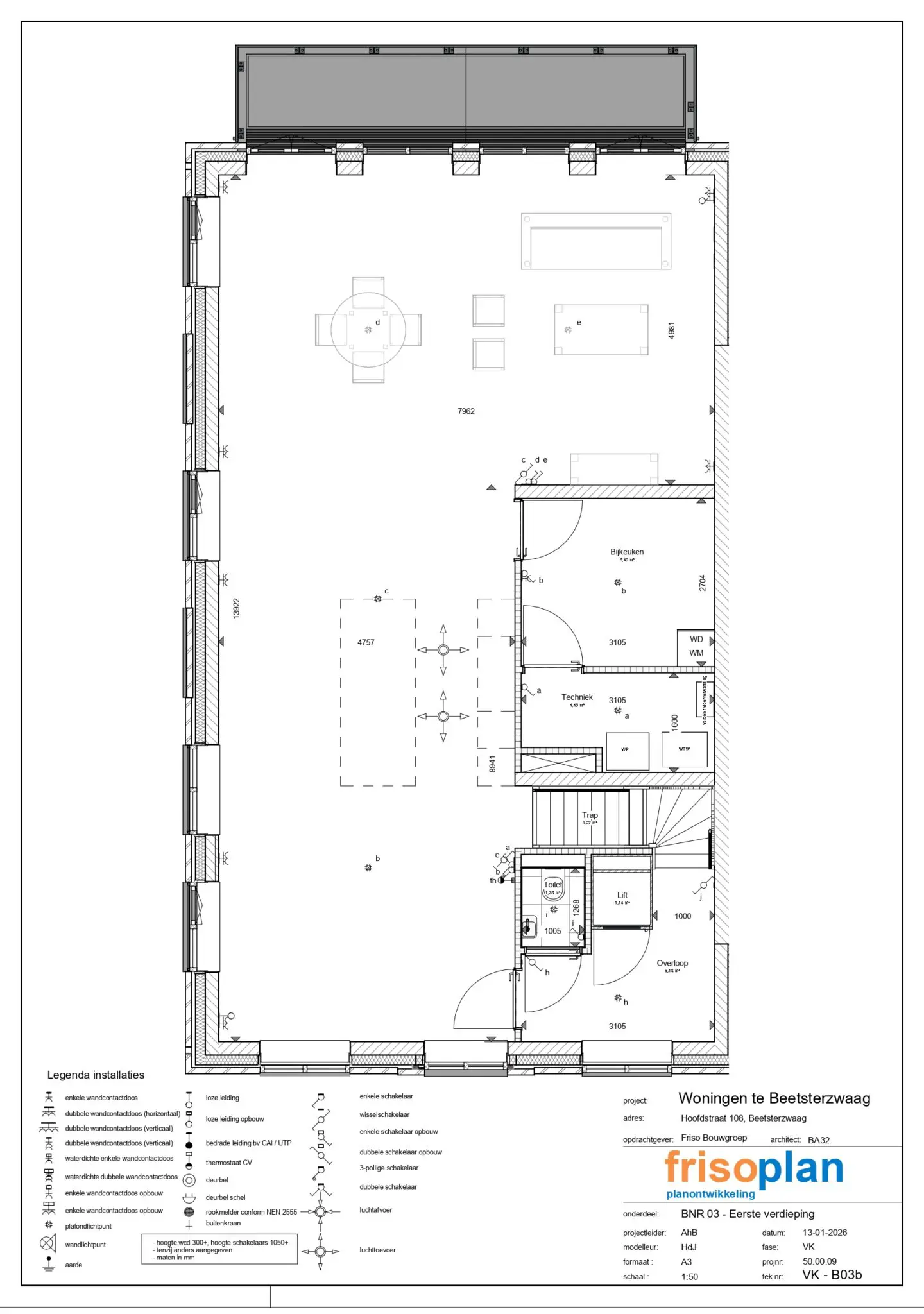
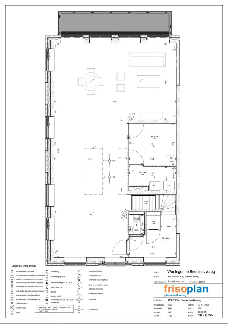
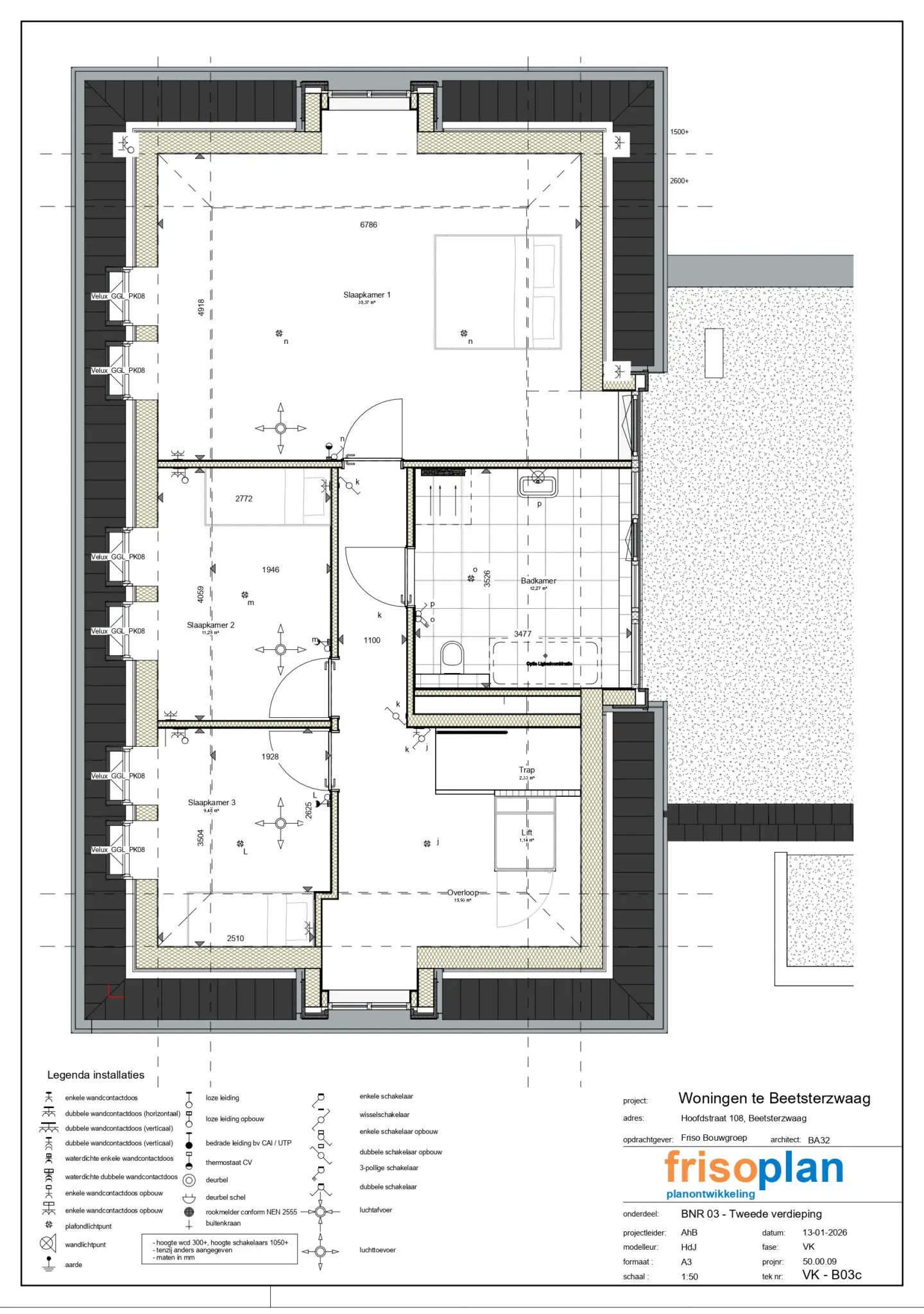
Dit royale penthouse beslaat de eerste en tweede verdieping en is bereikbaar via een privétrap én een privélift – een comfortabele en exclusieve entree die direct het karakter van deze woning onderstreept.
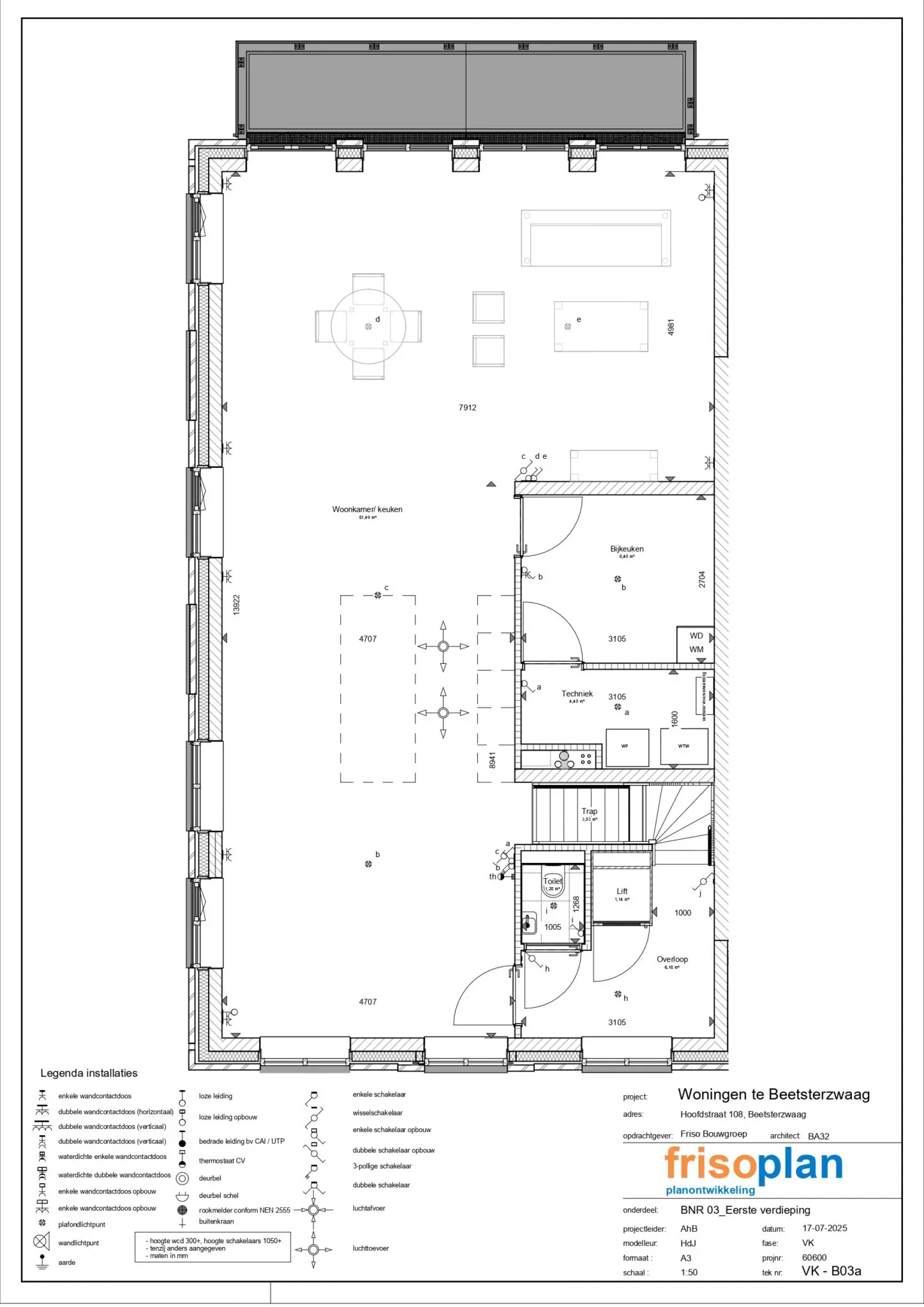
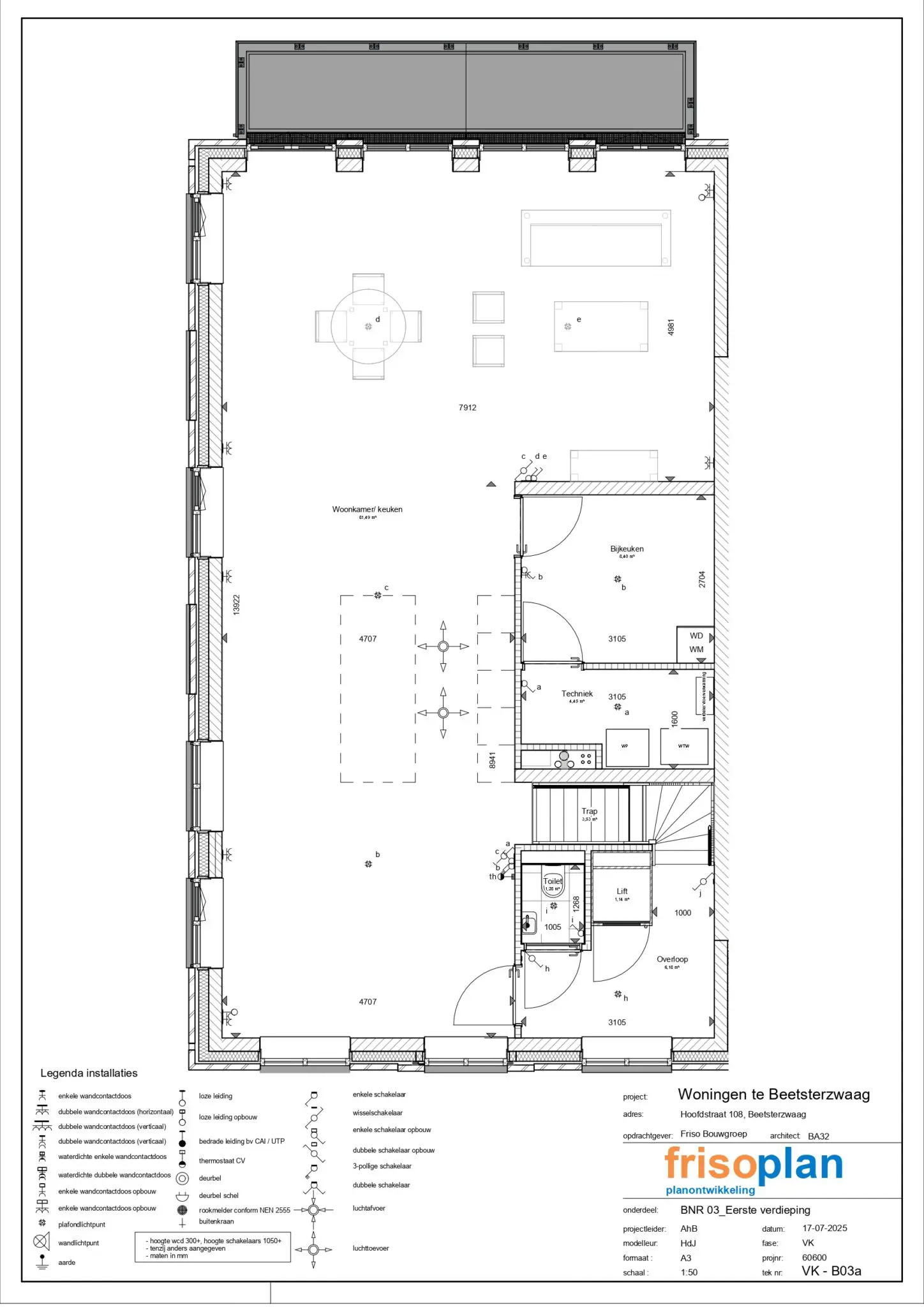
Op de eerste verdieping bevindt zich de ruime en lichte living met open keuken. Dankzij de ligging en de vele raampartijen geniet u hier van een prachtig panoramisch uitzicht over drie zijden van het pand. Het balkon op het zuiden vormt een heerlijke plek om te ontspannen en te genieten van de zon. Hier komen comfort, licht en ruimte perfect samen.
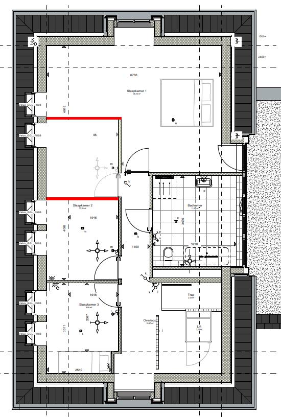
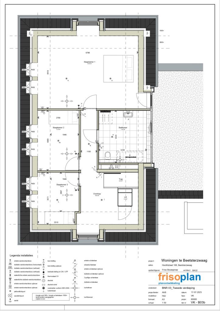
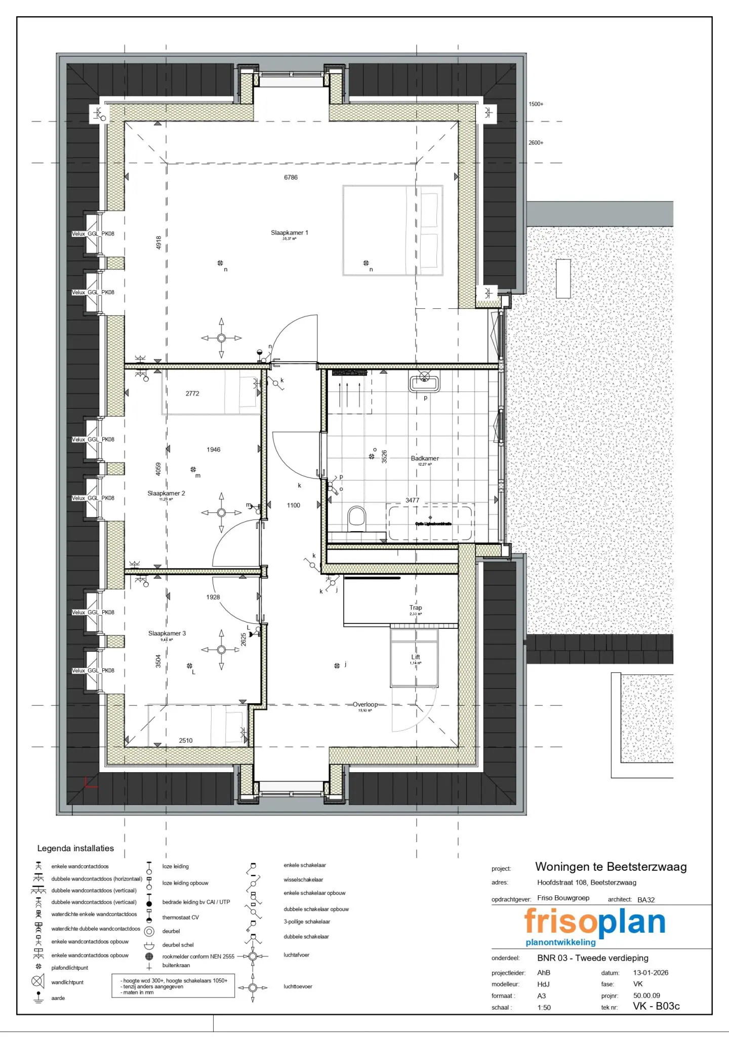
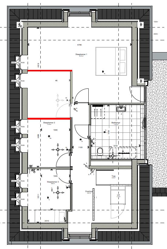
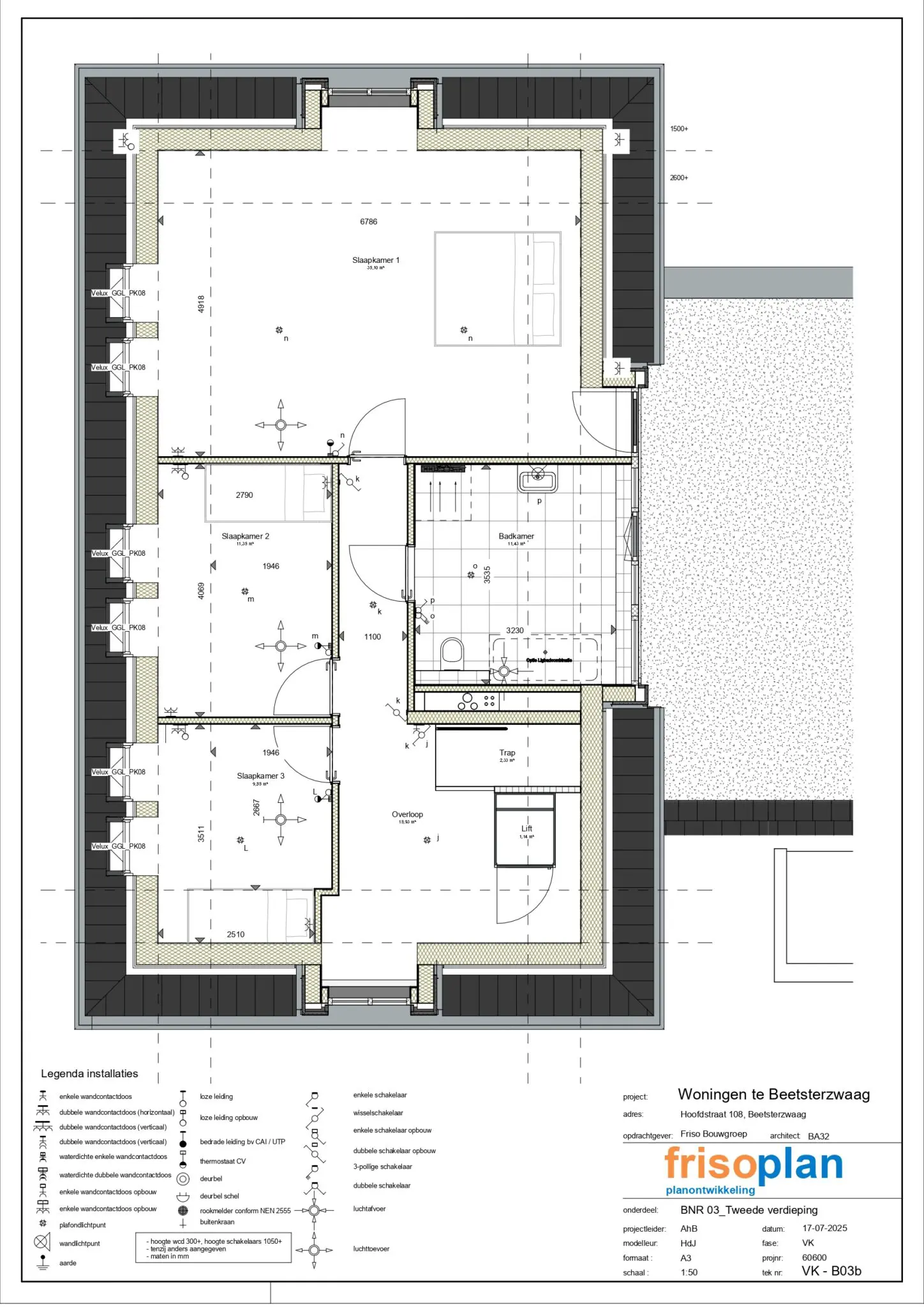
De tweede verdieping biedt plaats aan drie ruime slaapkamers, met de mogelijkheid om een vierde slaapkamer te realiseren. In combinatie met de royale badkamer ontstaat een ideale indeling met volop privacy en comfort voor het hele gezin. Dit penthouse biedt daarmee de perfecte balans tussen luxe, functionaliteit en flexibiliteit.
Duurzaam en toekomstgericht wonen
De appartementen worden gebouwd volgens de nieuwste duurzaamheidseisen en zijn standaard voorzien van:
– Vloerverwarming
– Warmtepomp
– Zonnepanelen
Daarnaast beschikt elk appartement over een eigen parkeerplaats en een fietsenberging aan de achterzijde van het gebouw. U woont hier energiezuinig, comfortabel en met oog voor de toekomst.
Wonen op een toplocatie
Wilt u genieten van alles wat Beetsterzwaag te bieden heeft? Gezellige terrassen, charmante boetiekjes, uitgestrekte bossen, een golfbaan en alle dagelijkse voorzieningen bevinden zich op slechts enkele minuten loopafstand van dit kleinschalige, exclusieve nieuwbouwproject.
Dit is dé ideale plek voor wie op zoek is naar ruimte, comfort en een unieke ligging in een van de mooiste dorpen van Friesland.





