Soms loop je een woning binnen en word je direct gegrepen door de sfeer, het licht en de ruimte. Deze woning heeft het allemaal! In de afgelopen jaren is deze woning uit 1955 getransformeerd tot een moderne en ruime gezinswoning.
De woning ligt aan een kort, doodlopend stukje van de Kuiperslaan en op slechts vijf wandelminuten van de Hoofdstraat van Beetsterzwaag. Hier vind je alles wat je nodig hebt om prettig te wonen. De woning heeft een knusse woonkamer en een luxe, uitgebouwde eetkeuken. Een diepe garage met een oprit naast de woning maakt de begane grond compleet. De achtertuin beschikt over een vijver, een heerlijke overkapping en een vrijstaande schuur.
Op de verdieping zijn drie slaapkamers en een moderne badkamer. Laten we in detail naar de woning kijken:
Begane grond
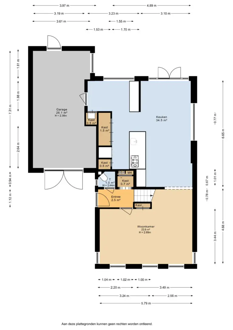
De entree met een modern toilet, een garderobe en een meterkast. Aan de voorzijde van de woning ligt de gezellige woonkamer met een fraaie houten vloer. Deze vloer loopt door in de uitbouw, waar de zeer ruime woonkeuken is gelegen. De keuken is van alle gemakken voorzien: een gloednieuwe kookplaat met in het plafond een weggewerkte afzuigkap, een XL-koelkast, een aparte vriezer, een stoomoven, een vaatwasser op hoogte en veel kastruimte.
In de doorgang tussen de keuken en de garage bevindt zich een handige kast met de wasmachine- en drogeropstelling. De garage is diep en beschikt zelfs over een bron waarmee in de zomer de tuin besproeid kan worden.
Zowel via de openslaande deuren van de eetkamer als via de garage is de achtertuin te bereiken. Deze oase van rust beschikt over een vrijstaande houten schuur voor de tuinspullen en een handige plek voor de vuilcontainers. Achter in de tuin is een fraaie overkapping, waar je op warme dagen extra beschutting kunt creëren met een doek. De vijver en de prachtige tuinaanleg maken het plaatje compleet.
Eerste etage
Via de trap kom je op een opvallend ruime overloop. Zowel hier als in alle slaapkamers is slim gebruik gemaakt van de schuine kanten van het dak. Overal is bergruimte of zijn vaste kasten aanwezig.
Aan de voorzijde bevindt zich een mooie, ruime slaapkamer en aan de achterzijde zijn nog eens twee ruime kamers. Wat opvalt zijn de hoge plafonds in de slaapkamers. In het midden van deze verdieping ligt de moderne badkamer, waar een dubbele wastafel, een inloopdouche en een toilet handig zijn gepositioneerd.
Een plaatje van een woning die je echt van binnen moet bekijken. Neem je eigen NVM-makelaar mee voor het juiste aankoopadvies.























































