Een instapklare en energie zuinige gezinswoning met comfort, ruimte én een zonnige tuin. Deze nette woning in Scharnegoutum is ideaal voor een gezin. Met vier slaapkamers, een aparte werkruimte op de verdieping, een geïsoleerde garage en een zonnige tuin op het zuid-westen woon je hier heerlijk vrij én comfortabel. Bovendien kijk je aan de voorzijde uit over een brede groenstrook met speeltoestellen, perfect voor kinderen.
Sinds 2018 is de woning grondig gemoderniseerd, hieronder een opsomming:
Nieuwe badkamer – maart 2018
Nieuwe toilet beneden – maart 2018
Dubbelglas HR++ benedenverdieping voorraam, zijraam, raamvoordeur – september 2022.
Dakraam slaapkamer – oktober 2022
Nieuwe groepenkast – november 2022
Waterontharder -november 2022
Vloerverwarming en nieuwe PVC vloer beneden – november 2022
Nieuwe keuken – december 2022
Opbouw garage + carport – januari 2023
8 Zonnepanelen op de carport – maart 2023
Kunststof schuifpui achterkant woning + kunststof pui en achterdeur – maart 2023.
Rolluiken geplaatst in dakkapellen achterzijde woning – april 2024.
Indeling
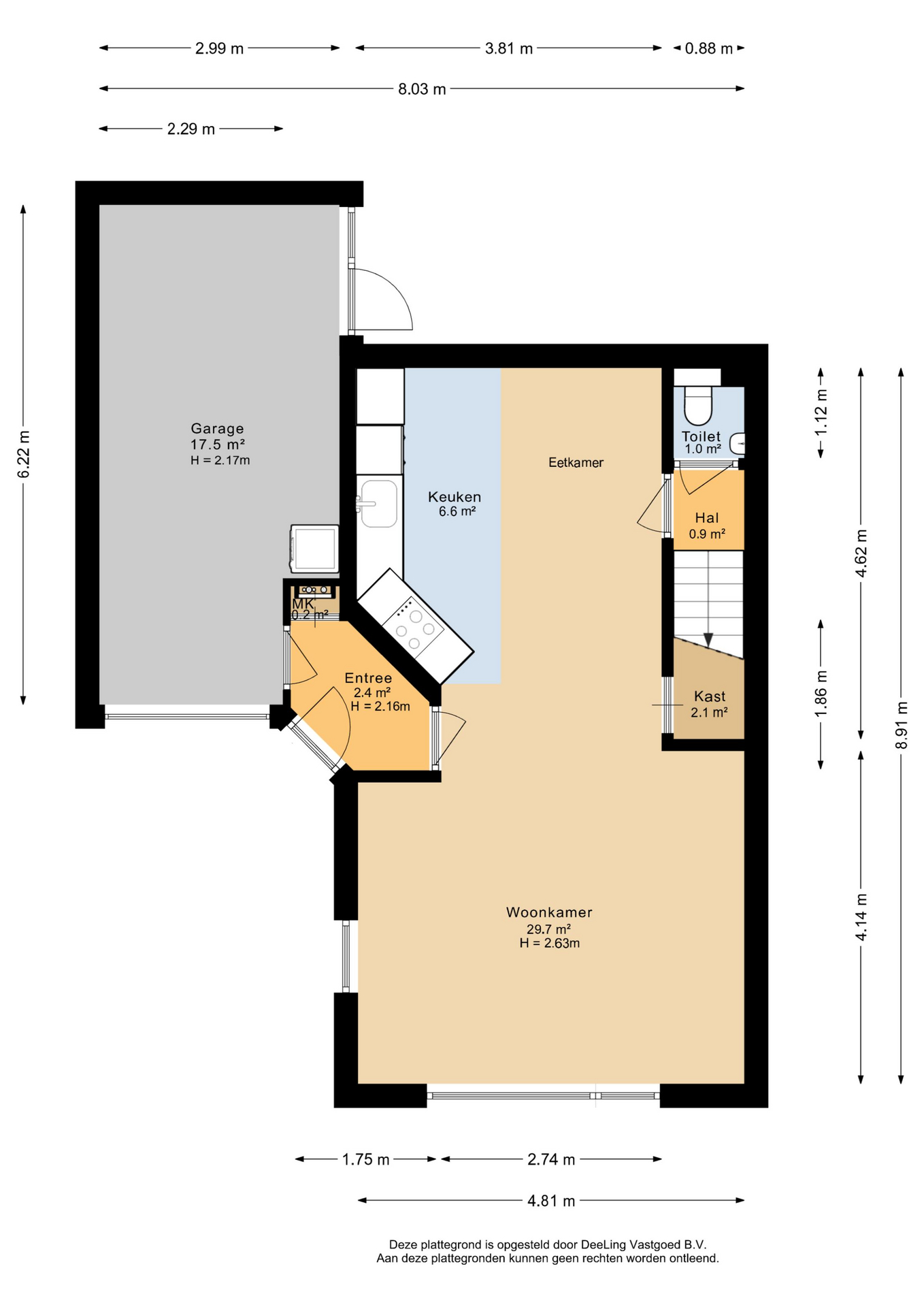
Begane grond Je komt binnen in de hal met de meterkast (2022), centraal gelegen tussen de woonkamer en de verwarmde, geïsoleerde garage. Aan de voorzijde ligt de lichte woonkamer met zicht op de groene strook voor de woning. Aan de achterzijde vind je de open keuken uit 2022, voorzien van moderne inbouwapparatuur. De kunststof schuifpui verbindt de keuken met de tuin op het zuid-westen, hier geniet je volop van zon, rust en privacy.
Via de tussenhal kom je bij het toilet (2018) en de trap naar boven. De benedenverdieping is voorzien van vloerverwarming en een nieuwe PVC vloer (beide aangelegd in 2022), wat zorgt voor een aangenaam leefklimaat. De garage is in 2023 uitgebreid met een opbouw en een carport met acht zonnepanelen.
De garage is verwarmd, geïsoleerd en voorzien van plavuizen. Hier bevinden zich ook de aansluitingen voor de wasmachine en de droger.
Op de eerste verdieping zijn vier comfortabele slaapkamers. Door de slimme indeling is er bovendien een ruime open werkplek gecreëerd, ideaal voor thuiswerken of studeren. In de opbouw van de garage is tevens een vliering gerealiseerd die te bereiken is via een vlizotrap. De badkamer is licht, modern en in 2018 vernieuwd. Voorzien van een douche, ligbad, 2e toilet, wastafelmeubel en een designradiator.
Een vaste trap leidt naar de zolderverdieping, waar voldoende bergruimte is én de mogelijkheid om een vijfde slaapkamer te realiseren.
Locatie Scharnegoutum is een actief en gezellig dorp met volop voorzieningen: een supermarkt, een warme bakker, een basisschool, een dorpshuis, een huisarts en een fysiopraktijk zijn allemaal dichtbij. Ook op sportief gebied is er genoeg te doen met een sporthal, voetbalvelden en tennisbanen. En wil je naar de stad? Sneek ligt op nog geen tien minuten fietsen.
Nieuwsgierig geworden? Bel ons voor een afspraak; we laten je deze complete en instapklare gezinswoning graag zien!
























































