Zoek je een plek waar je echt je eigen droomhuis van kunt maken? Op een fraaie hoek locatie in het geliefde Beetsterzwaag ligt deze vrijstaande woning op een royaal perceel van maar liefst 567 m². Hier woon je heerlijk vrij, maar toch op loopafstand van de bossen, de gezellige hoofdstraat met zijn winkels en terrassen, en de basisscholen. Moet er aan de woning geklust worden? Zeker. Maar creëer je hier een droomhuis op een absolute droomplek? Absoluut!
Indeling:
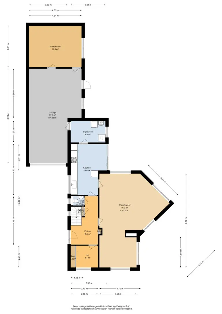
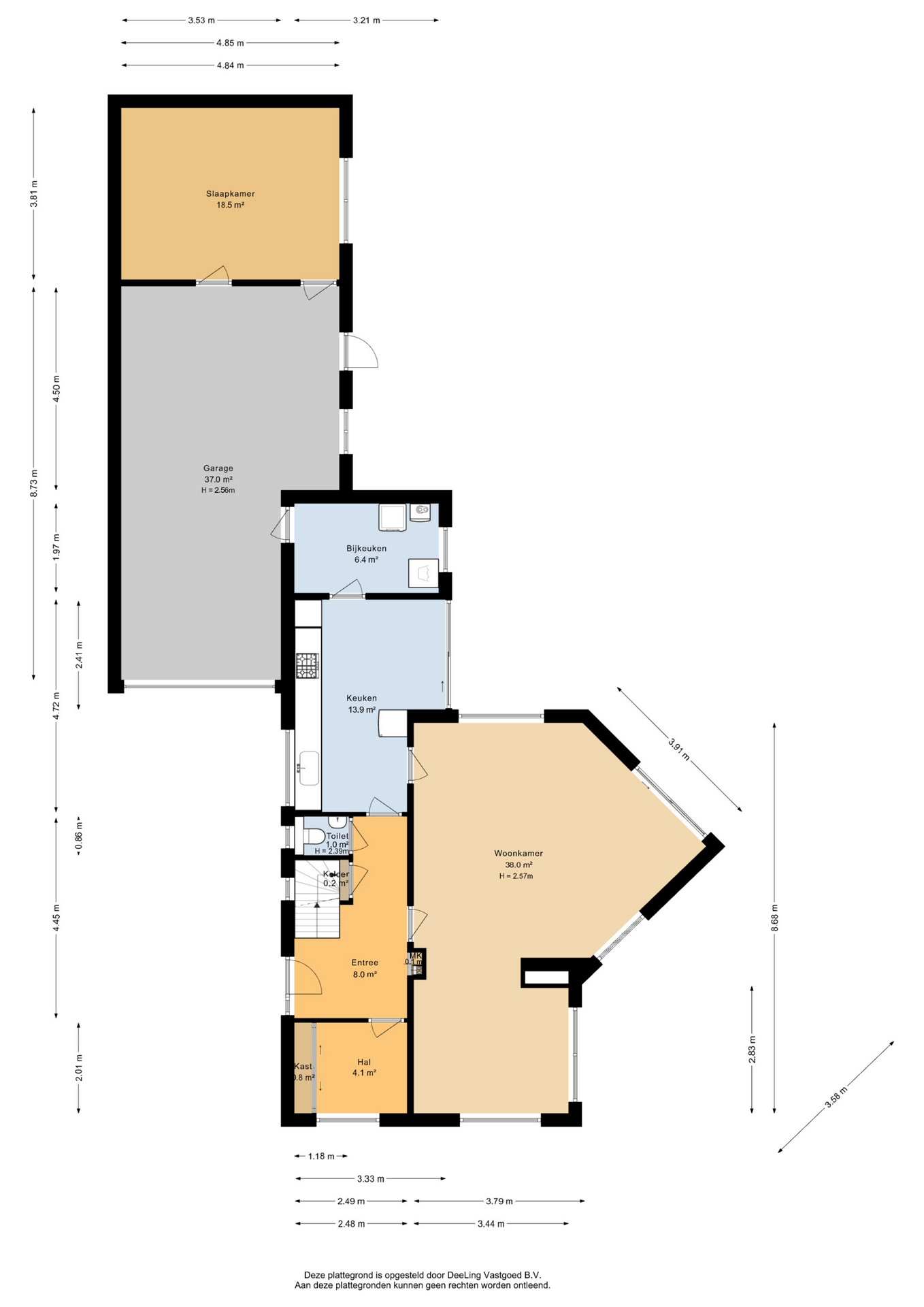
Via de lange oprit bereik je de entree van de woning. Bij binnenkomst ervaar je direct de ruimte en het licht. De hal is praktisch ingericht met een ruime kelder, een af te sluiten garderobe en een vaste kastenwand, ideaal voor een opgeruimd huis of te gebruiken als werkplek.
De woonkamer heeft een speelse indeling met twee zithoeken en een sfeervolle open haard als centraal middelpunt. Dankzij de grote raampartijen heb je overal zicht op de omliggende tuin. De halfopen eetkeuken is functioneel en biedt voldoende ruimte voor een gezellige eethoek. Grenzend aan de keuken vind je de bijkeuken met de aansluitingen voor het witgoed.
De garage is bij dit huis een hoofdstuk apart: deze is aan de achterzijde verbreed en verlengd, waardoor er verrassend veel ruimte is ontstaan. Achter de garage bevindt zich een aparte kamer die momenteel als kantoorruimte wordt gebruikt. Een perfecte plek voor wie rustig wil thuiswerken, hobbyruimte of slaapkamer zoekt met eigen toegang.
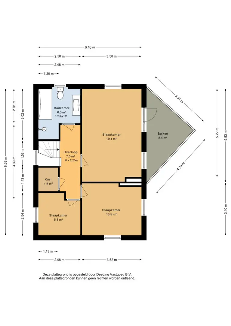
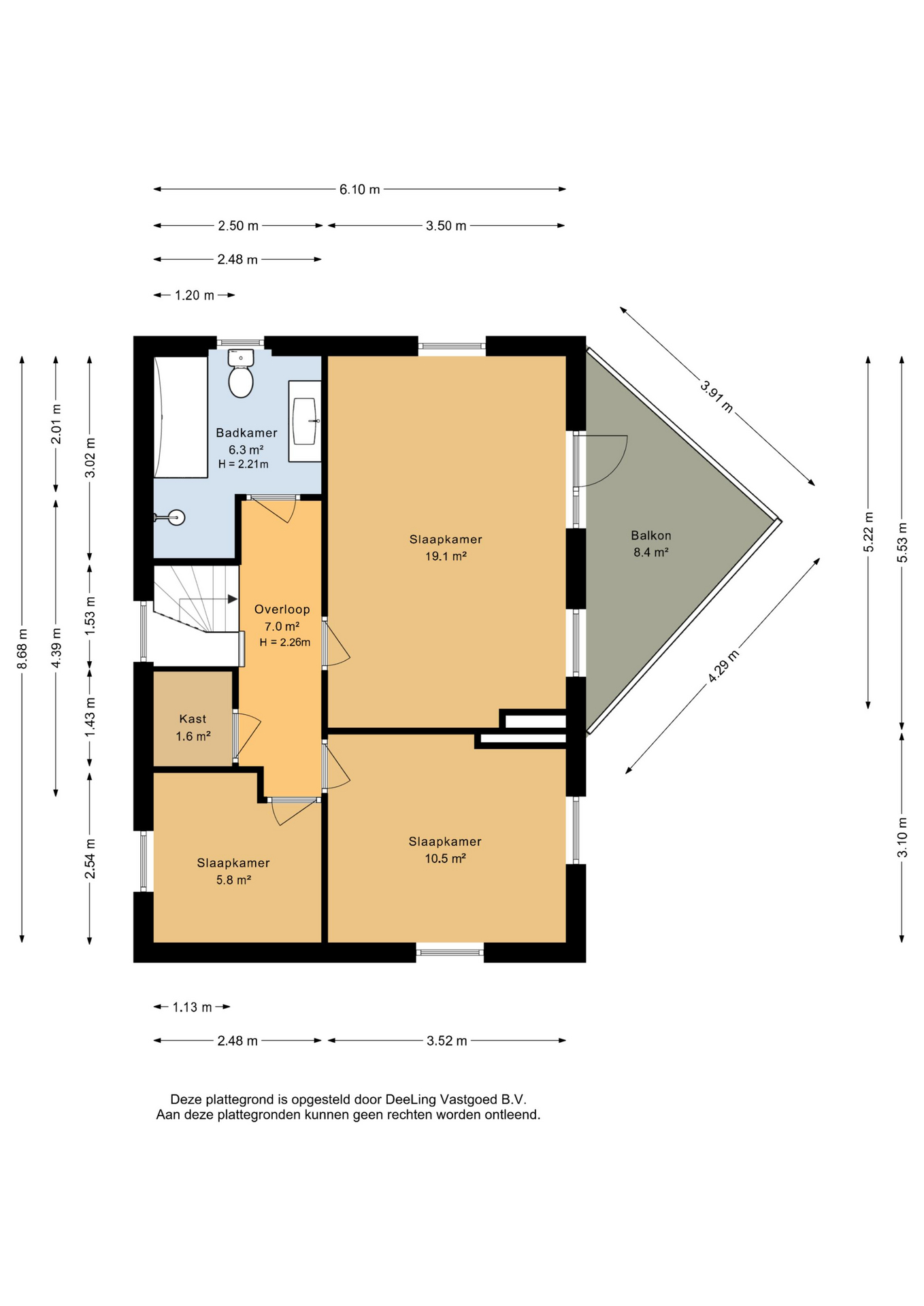
Op de eerste etage bevinden zich drie prima slaapkamers. De badkamer is ruim opgezet en voorzien van een ligbad, aparte douche, toilet en een wastafelmeubel. Op de overloop vind je bovendien een diepe, praktische kast voor extra bergruimte.
De tuin rondom de woning is dé plek waar dit huis echt tot zijn recht komt. Door de hoekligging en het forse perceeloppervlak heb je hier alle privacy en volop mogelijkheden om verschillende terrassen of een speelplek voor de kinderen aan te leggen. Of je nu in de zon wilt zitten of de koelte van de bomen opzoekt, de ruimte is er.
Kortom:
Een woning met karakter en enorm veel potentie op een van de mooiste plekjes van Beetsterzwaag. Ben jij degene die deze kans grijpt en hier een nieuw hoofdstuk begint? We nodigen je van harte uit om de mogelijkheden zelf te komen bekijken!





















































