Op een fraaie en rustige locatie op loopafstand van het centrum van Beetsterzwaag staat deze karakteristieke vrijstaande jaren ’30 woning met vrijstaande garage. De woning biedt ruimte, een gunstig gelegen tuin op het westen en de mogelijkheid tot gelijkvloers wonen. De woning heeft tevens vanaf 2015 een grondige renovatie en uitbreiding ondergaan.
Indeling:
Begane grond
Via de entree komt u in de hal met trapopgang naar de eerste verdieping. Vanuit de hal bereikt u de sfeervolle woonkamer met eethoek en halfopen keuken. Aansluitend bevindt zich de bijkeuken met ruimte voor wasmachine en droger, netjes weggewerkt achter een schuifdeur.
In de bijkeuken zijn reeds voorbereidingen getroffen (leidingwerk) voor het realiseren van een douchehoek. Daarnaast is er de mogelijkheid om de achtergelegen ruimte te transformeren tot een slaapkamer, waardoor gelijkvloers wonen mogelijk wordt. Uiteraard kan deze ruimte ook uitstekend dienen als extra woonkamer, kantoor of speelkamer.
De royale vrijstaande garage met overkapping biedt volop bergruimte en geeft een mooi zicht op de zonnige achtertuin. De tuin is gunstig gelegen op het westen en is tevens via de achterzijde bereikbaar, waar een parkeerterrein aanwezig is.
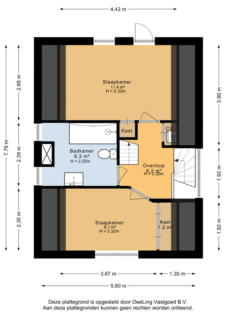
Eerste verdieping:
Op de overloop bevinden zich twee royale slaapkamers, gesitueerd aan de voor en achterzijde van de woning. Tussen de slaapkamers ligt de moderne badkamer, voorzien van toilet, wastafel en een bubbelbad met douchegelegenheid.
Zolder:
Via een vaste trap bereikt u de ruime zolderverdieping, ideaal als bergzolder met extra gebruiksmogelijkheden.
Buitenruimte:
De achtertuin op het westen biedt veel privacy en een vrije ligging. Vanuit de tuin loopt u zo het Lycklama Park in voor een heerlijke wandeling.
Ligging:
Dankzij de uitstekende ligging bevinden winkels, voorzieningen en horeca zich op loopafstand. Daarnaast liggen de bossen en de golfbaan op steenworp afstand, wat deze woning bijzonder aantrekkelijk maakt voor liefhebbers van natuur en rust.
Interesse?
Wilt u deze charmante woning met eigen ogen bekijken? Neem dan snel contact op met ons kantoor voor het maken van een bezichtigingsafspraak.





















































