Ben jij op zoek naar ruimte, écht ruimte? Dan ben je hier aan het juiste adres! Of je nu een groot gezin hebt, op zoek bent naar een praktijkruimte of een plek nodig hebt voor je hobby’s. Alles is mogelijk in deze woning met maar liefst vier volwaardige verdiepingen en een royale, onderhoudsvrije tuin. De woning is vrijwel volledig voorzien van nieuwe kunststof kozijnen, beschikt over een nieuwe tweede badkamer op de derde etage en is goed geïsoleerd.
De woning ligt aan de rand van Gorredijk en is uitstekend bereikbaar dankzij de goede busverbindingen en de gunstige ligging nabij de A7. Daarnaast zijn prachtige natuurgebieden op korte fietsafstand te vinden.
Het dorp Gorredijk is levendig en biedt een breed scala aan voorzieningen: Van meerdere supermarkten en gezellige winkels tot uitgebreide sportaccommodaties en tal van (sport)verenigingen. Ook op het gebied van onderwijs is er volop keuze, met zowel basisscholen als voortgezet onderwijs. Bovendien ligt Gorredijk aan de vaart, met een sluis die deel uitmaakt van de sfeervolle Turfroute.
We gaan naar binnen!
Indeling
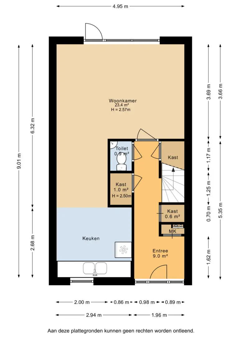
Begane grond
Deze verdieping wordt momenteel gebruikt als een praktijkruimte. De ruimte is licht, ruim en biedt toegang tot de achtertuin. Er is een keukenblok aanwezig, evenals veel vaste kastruimte en een toilet ook een mogelijkheid om dit op te toveren tot een extra woonkamer of iets dergelijks.
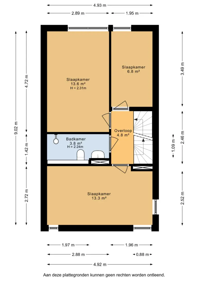
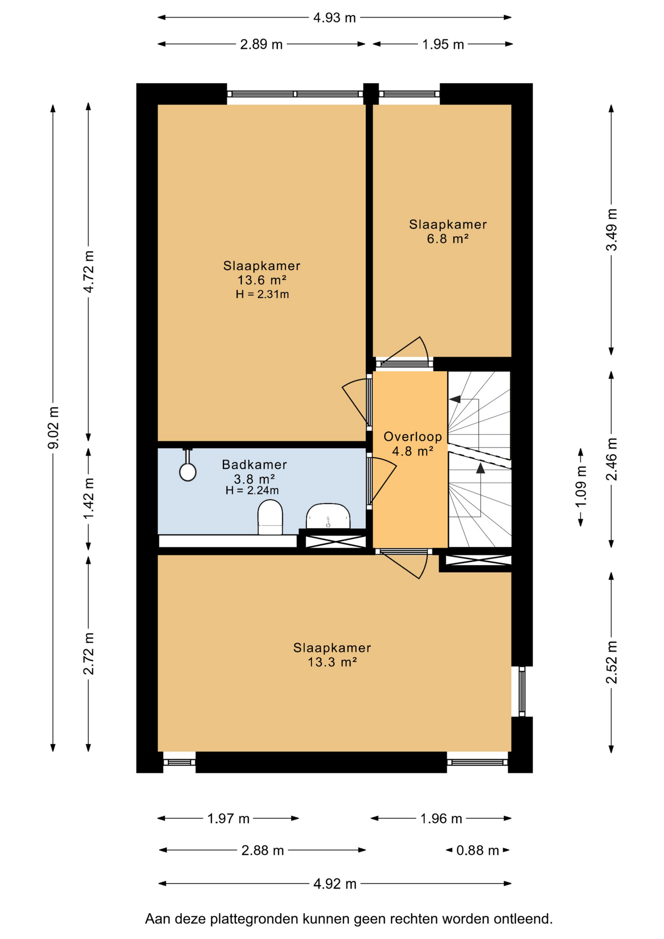
Eerste etage
Op deze verdieping bevinden zich drie royale slaapkamers. Aan de voorzijde ligt de ruime ouderslaapkamer, terwijl aan de achterzijde nog twee goede slaapkamers te vinden zijn. In het midden van deze etage bevindt zich een functionele doucheruimte met een douche, een wastafel, een designradiator en een toilet.
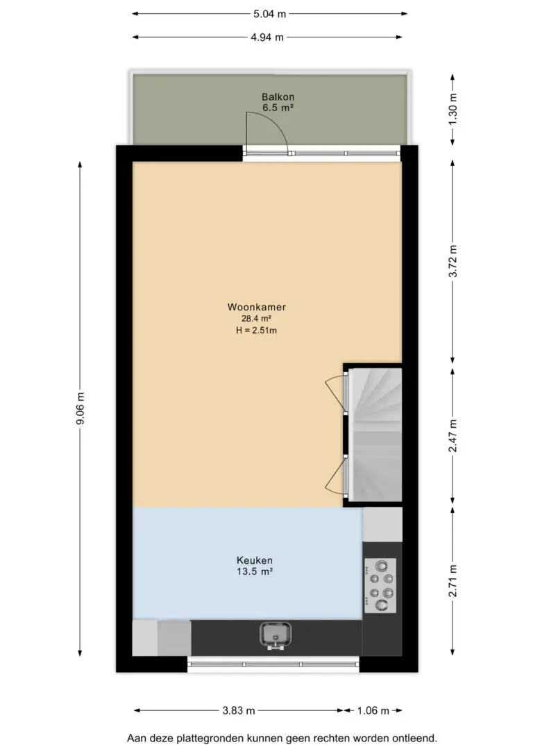
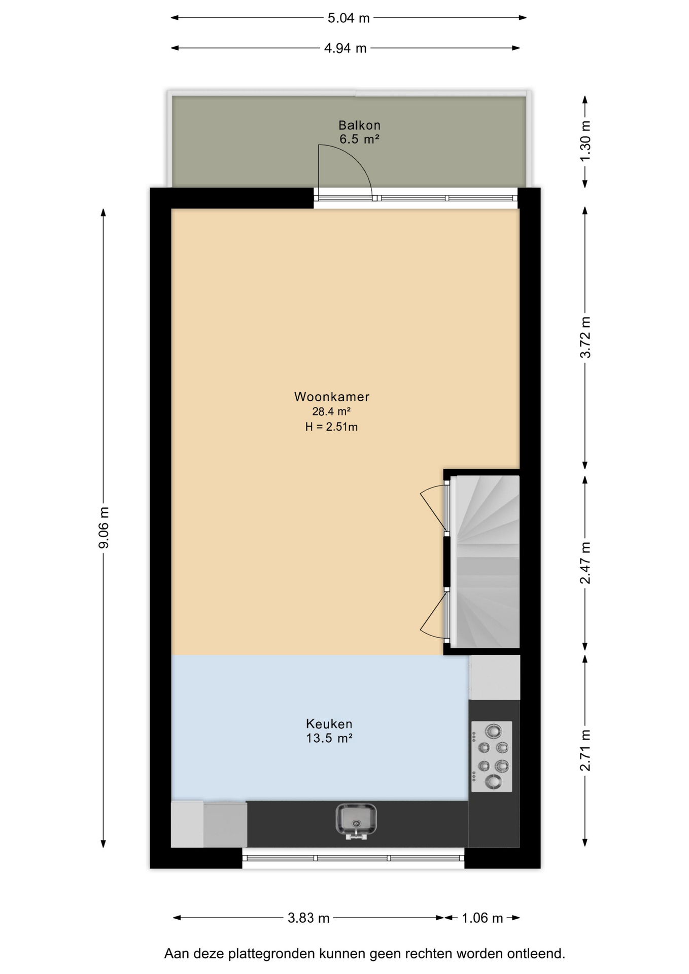
Tweede etage
Deze zeer ruime leefverdiepbied heeft een lichte woonkamer en een open keuken. De keuken, geplaatst in 2020, is compleet uitgerust met een zespits fornuis met een afzuigkap, een vaatwasser, een koel-vriescombinatie en veel kastruimte. Tevens op deze verdieping een airco (2024) aanwezig.
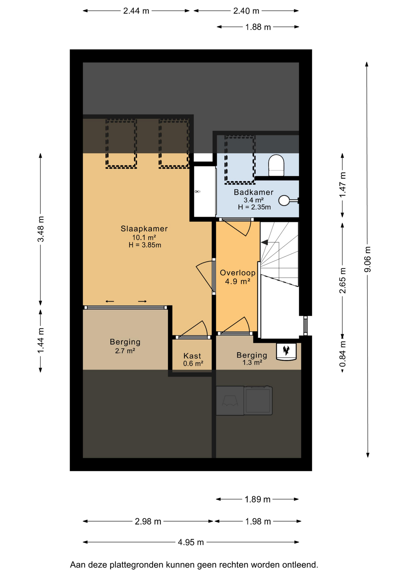
Derde etage
Een volwaardige verdieping met veel bergruimte. Hier vind je een praktische was- en stookruimte en een grote vierde slaapkamer. Op de overloop bevindt zich de vernieuwde badkamer, compleet met een douche, een wastafel en een toilet. Tevens op deze verdieping een airco (2024) aanwezig.
De grote voortuin op het westen is ideaal om te genieten van de avondzon. De gezellige tuin aan de achterzijde heeft een mooi terras en een overkapping, perfect voor ontspannen momenten buiten en er een een grote opbergruimte aanwezig aan voorzijde.
We laten je graag de mogelijkheden zien die deze ruime woning biedt. Neem vooral je NVM-aankoopmakelaar mee!













































