Wil jij wonen in de binnenstad? Vlak bij alle voorzieningen en toch in een opmerkelijk rustige omgeving? Deze vrijstaande stadswoning met haar imposante trappenhuis is wellicht de woning voor jou! In het beschermde stadsgezicht van Leeuwarden, direct gelegen naast de Kosterij van de Jacobijnerkerk en op een steenworp afstand van de Prinsentuin, het gezellige Gouverneursplein en het stads(winkel)hart staat deze statige woning klaar voor een bezichtiging. Parkeren met bewonersvergunning doe je gewoon voor de deur. Een ruime woonkamer, een eetkeuken, een ruime tuin met berging, 5 slaapkamers, het is allemaal aanwezig, en we nemen je graag mee op tour.
Indeling:
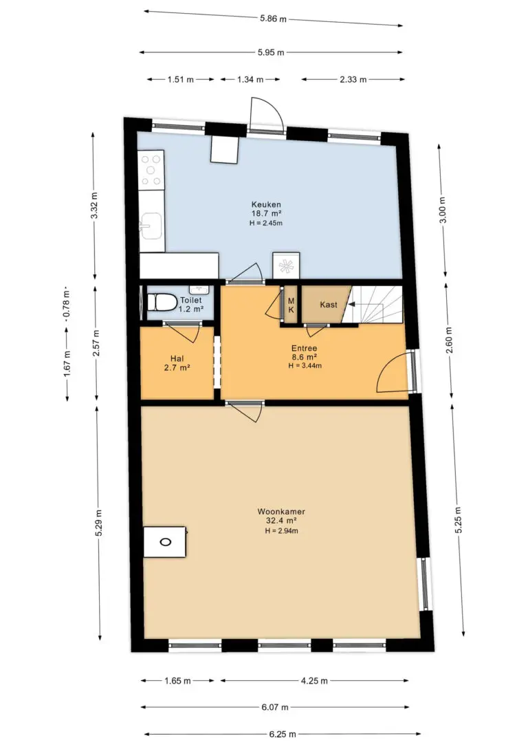
Via de hoofdentree aan de zijkant van het pand treed je de woning binnen. Direct als je de gang binnen stapt valt het centraal in de woning gelegen trappenhuis op. Alle ruimtes in de woning zijn letterlijk rond dit trappenhuis gelegen. Op de begane grond heb je aan de straatzijde de ruime, statige woonkamer met de tegelkachel. De hoge ramen maken de kamer ruimtelijk en licht. Aan de achterzijde van de woning is de woonkeuken. Deze is voorzien van een stoere stalen keuken en er is ruimte genoeg voor een gezellig grote eettafel. Verder tref je op de gang de ruime garderoberuimte, toilet en trapkast aan. Via de keuken loop je zo de ruime stadstuin in. De tuin is ook vanaf de straat via de zijpoort te bereiken zodat de fiets gemakkelijk de schuur in kan.
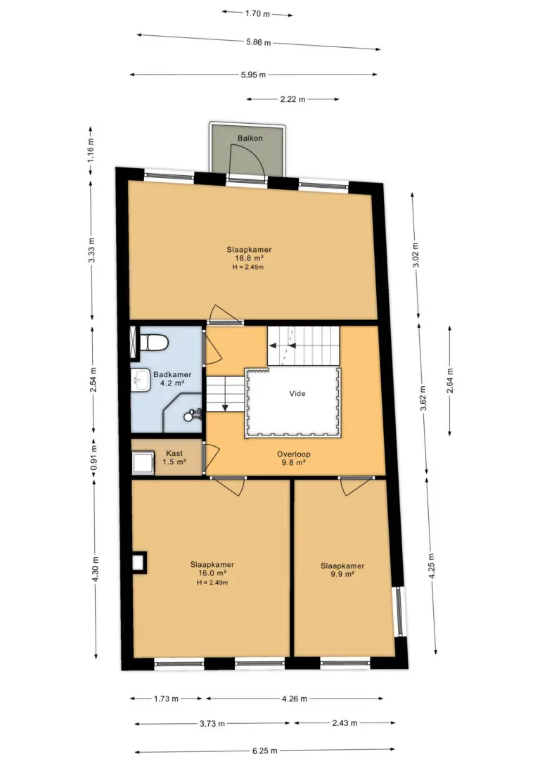
Eerste tussenverdieping – Op deze verdieping is de royale ouderslaapkamer gelegen en de badkamer. De slaapkamer, ook weer licht en ruimtelijk, heeft een klein balkon aan de oostzijde. De badkamer is voorzien van douche, tweede toilet en wastafelmeubel. Naast de badkamer is een handige, aparte ruimte voor de wasmachine. Een paar treden hoger, aan de voorzijde van de woning zijn nog twee, ook weer ruime en hoge slaapkamers.
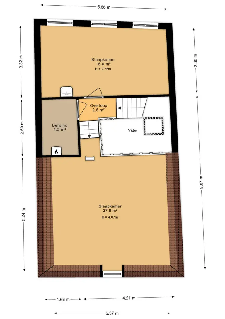
Tweede tussenverdieping – We nemen de trap verder omhoog en komen een derde ruime kamer tegen. Deze ligt boven de ouderslaapkamer en heeft een gelijke maatvoering. Ook ligt op deze verdieping de stookruimte. We gaan andermaal een paar treden omhoog en komen op in de bovenste ruimte. Thans een prachtig open ruimte, wellicht in de toekomst een vijfde slaap/werkkamer. In de nok van de woning, via een losse trap te bereiken is een praktische bergzolder.




















































