Instapklaar wonen op eigen grond in een sfeervolle jaren ’30 woning?
Aan de Leliestraat 27 woon je op een fijne locatie in een gezellige woonwijk aan de oostzijde van de stad, op loopafstand van het historische centrum. Deze karakteristieke tussenwoning is gelegen op eigen grond – dus géén erfpacht – en is door de jaren heen gerenoveerd en gemoderniseerd. Een warme, sfeervolle woning waar je zó in kunt!
Indeling:
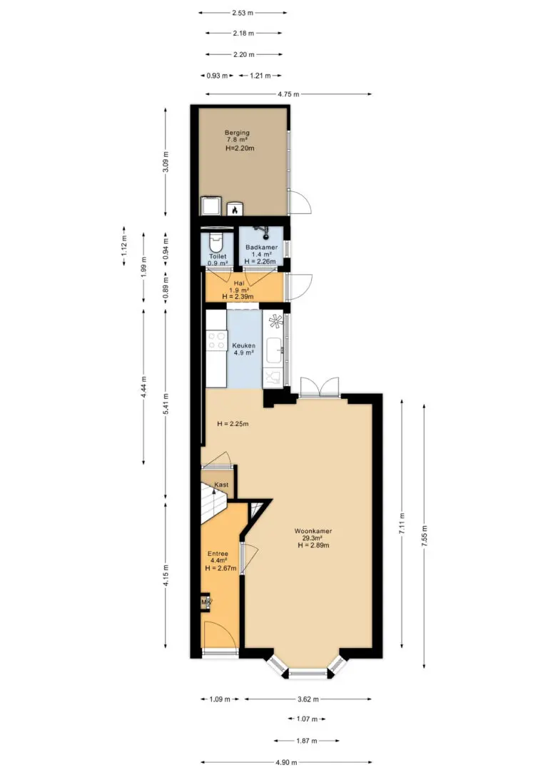
Begane grond – Je komt binnen via de hal met meterkast. De lichte doorzonwoonkamer met authentiek erkerkozijn en openslaande deuren naar de tuin ademt sfeer en comfort. Achter de woning vind je een gezellige stadstuin met achterom en een praktische stenen berging met elektra en de opstelling van de CV-ketel.
In de halfopen keuken is aan weerszijden een moderne opstelling met diverse inbouwapparatuur en een handige trapkast. Via het achterportaal heb je toegang tot het toilet en de vernieuwde doucheruimte. Deze is in de afgelopen jaren aangepakt met nieuw tegelwerk, vernieuwde leidingen én een energiezuinig infrarood verwarmingspaneel.
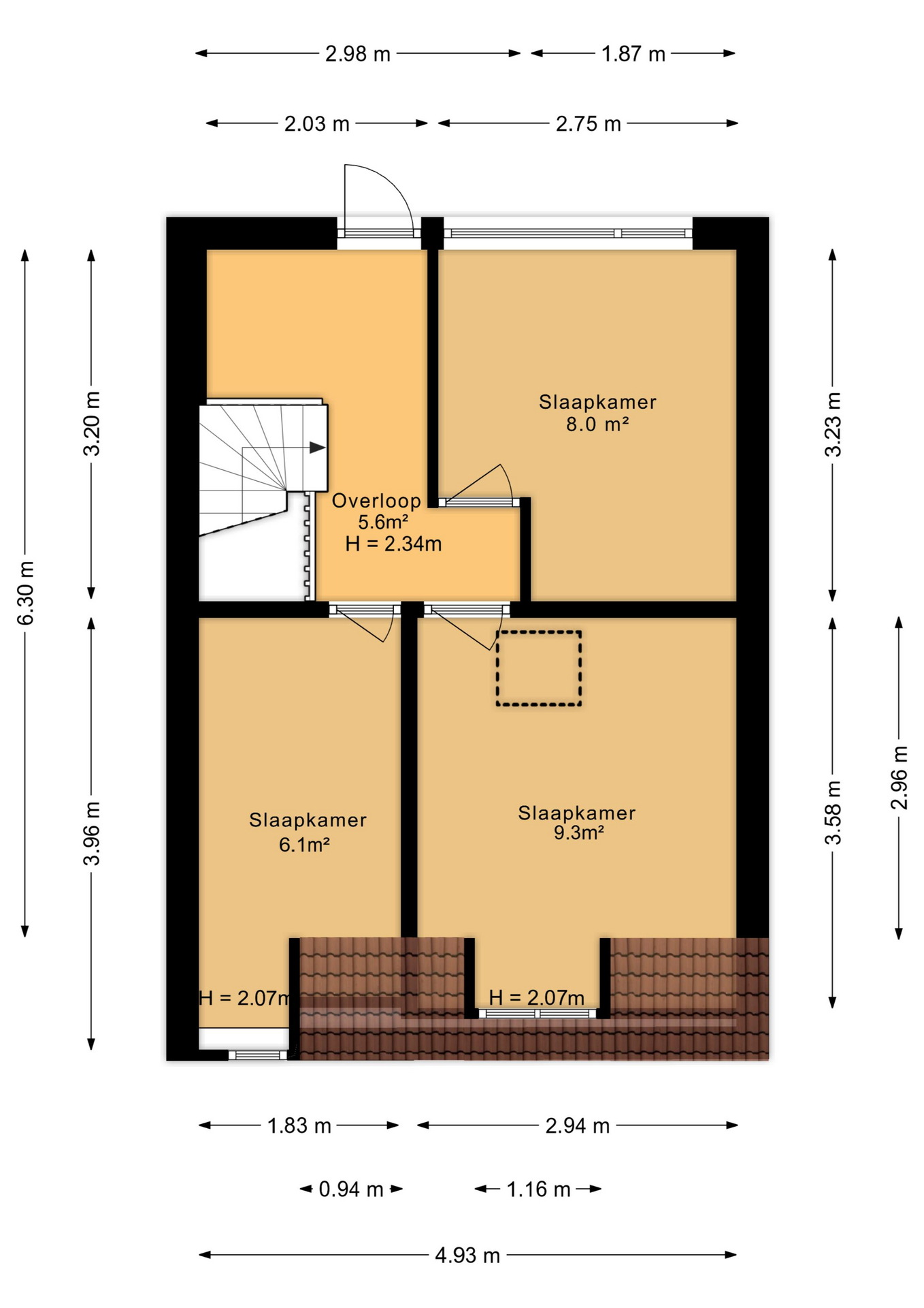
Eerste verdieping – Vanaf de overloop heb je toegang tot het platte dak van de aanbouw. Aan de achterzijde bevindt zich een ruime slaapkamer. Aan de voorzijde liggen twee slaapkamers, beide met dakkapel.
Tweede verdieping – Praktische bergzolder, bereikbaar via een vlizotrap.
Bijzonderheden:
– Gelegen op eigen grond, dus geen erfpacht
– In 2021 zijn onder de vloer isolatiechips aangebracht voor extra wooncomfort
– Doucheruimte vernieuwd met o.a. nieuwe leidingen, tegelwerk en infraroodpaneel
– Verwarming via een eigen CV-combiketel (ATAG, 2018)
– Vrijwel geheel voorzien van dubbele beglazing
– Elektra met uitgebreide automatische groepenkast
Kortom: een fijne, nette woning met karakter op een topligging dichtbij de binnenstad. Klaar om jouw woonavontuur te beginnen?






































